PISOCENTROALICANTE.COM

ALQUILERLOCALALICANTE.COM

administradores de propiedades

property managers

ref: LCV581

ALQUILER DE INMUEBLE PARA EMPRESAS

 +PROPERTY RENTAL FOR COMPANIES

CENTRO DE ALICANTE

+CENTER OF ALICANTE

bit.ly/piso_c1

bit.ly/3aAadi7

¡ En pleno Centro !

+ In the center !

 

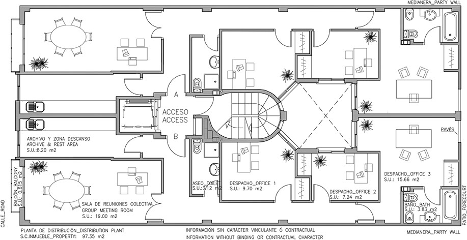
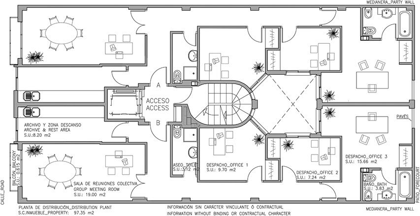
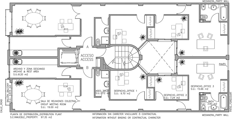
Alquiler de inmueble en primera planta ideal para academias de enseñanza, dentistas, laboratorios, notarías, estudios, despachos de abogados y arquitectos, espacios coworking

 

+ Property rental on the first floor ideal for teaching academies, dentists, laboratories, notaries, studios, law firms and architects, coworking spaces

 

4 despachos ó 3 despachos+zona común

 

4 offices or 3 offices + common area

 

Superficie

Area

 

97,35 m2c

 

2 baños

 

2 bathroom

LOCALIZACIÓN

+LOCATION

Solicitar

una visita

 

Request

a visit

CARACTERÍSTICAS

 

-Superficie_97,35 m2c

-4 offices or 3 offices + common area

-1 aseo y 1 baño

-No se permiten modificaciones de la distribución del inmueble, o alterar las obras existentes.

 

 

BRITISH

 

FEATURES

 

+Area  97,35 m2c

4 offices or 3 offices + common area

+1 toilet & 1 bath

+Modifications of the distribution of the property, or altering the existing works are not allowed.

 

CONTACTAR / CONTACT

 

TELÉFONOS_PHONE

+0034.865.785.505

 

CORREO _MAIL

 pisocentroalicante@

pisocentroalicante.com

 

HORARIO_SCHEDULE

L-J  9:00 -13:30

M-T 9_00 am-1:00 pm

 

150126